St. James Church | |
![]() Drawing of the front and side | |
![]() ![]() | |
| Location | VA 614, Owensville, Virginia (Charlottesville vicinity) |
|---|---|
| Coordinates | 38°06′08″N 78°34′22″W / 38.10222°N 78.57278°W |
| Area | 1 acre (0.40 ha) |
| Built | 1896 |
| Architectural style | Vernacular Gothic Revival |
| NRHP reference No. | 12001186[1] |
| VLR No. | 002-0582 |
| Significant dates | |
| Added to NRHP | January 14, 2013 |
| Designated VLR | September 20, 2012 [2] |
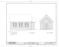
St. James Church (also known as Garth Chapel) is a historic church located northwest of Charlottesville near Owensville, Albemarle County, Virginia, United States on VA 614 east of VA 676. The vernacular Gothic Revival chapel was constructed in 1896 with the help of the Garth Family and the sponsorship of Christ Episcopal Church in Charlottesville. The church served a congregation of between 25–30 people at its construction. Regular worship services were held up until the 1940s, after which only graveside funeral services were held. Beginning in 1974 and continuing to the present day, christenings, weddings, and funerals were held in the church. Although there is no active congregation, St. James Church continues to be a consecrated Episcopal Church.[3]
It was added to the National Register of Historic Places on January 14, 2013.[1]
See also
References
- 1 2 "National Register of Historic Places Listings". January 25, 2013. Retrieved August 8, 2013.
- ↑ "Virginia Landmarks Register" (PDF). Virginia Department of Historic Resources. Retrieved 2013-08-08.
- ↑ Geoffrey Henry and Gardiner Hallock (May 2012). "National Register of Historic Places Registration Form: St. James Church" (PDF). Commonwealth of Virginia, Department of Historic Resources. Archived from the original (PDF) on 2012-09-26.
External links
- Garth Chapel, Garth Road (State Route 676), Owensville, Albemarle County, VA: 5 measured drawings and 9 data pages from the Historic American Buildings Survey
- St. James Church, Albemarle Co.: 4 photos from Virginia Department of Historic Resources
%252C_Owensville%252C_Albemarle_County%252C_VA_HABS_VA%252C2-OWEN.V%252C1-_(sheet_3_of_5).png.webp)



