THE STEAM TURBINE
THE REDE LECTURE
1911
BY
Sir CHARLES A. PARSONS, K.C.B.
Cambridge:
at the University Press
1911
Cambridge:
PRINTED BY JOHN CLAY, M.A.
AT THE UNIVERSITY PRESS
For the use of the blocks to illustrate Sir Charles
Parsons' lecture, the University Press, Cambridge,
gratefully acknowledges the kindness of the Editors
of Engineering and Mr Alex. Richardson, author of
The Evolution of the Parsons Steam Turbine—a
work which deals comprehensively with the subject.

Fig. 1. The "Turbinia" and the "Mauretania."
THE STEAM TURBINE
In modern times the progress of science has been phenomenally rapid. The old methods of research have given place to new. The almost infinite complexity of things has been recognized and methods, based on a co-ordination of data derived from accurate observation and tabulation of facts, have proved most successful in unravelling the secrets of Nature; and in this connection I cannot but allude to the work at the Cavendish Laboratory and also to that at the Engineering Laboratory in Cambridge, and to the association of Professor Ewing with the early establishment of records in steam consumption by the turbine.
In the practical sphere of engineering the same systematic research is now followed, and the old rule of thumb methods have been discarded. The discoveries and data made and tabulated by physicists, chemists, and metallurgists, are eagerly sought by the engineer, and as far as possible utilized by him in his designs. In many of the best equipped works, also, a large amount of experimental research, directly bearing on the business, is carried on by the staff.
The subject of our lecture today is the Steam Turbine, and it may be interesting to mention that the work was initially commenced because calculation showed that, from the known data, a successful steam turbine ought to be capable of construction. The practical development of this engine was thus commenced chiefly on the basis of the data of physicists, and, as giving some idea of the work involved in the investigation of the problem of marine propulsion by turbines, I may say that about £24,000 was spent before an order was received. Had the system been a failure or unsatisfactory, nearly the whole of this sum would have been lost.
Further, in order to prove the advantage of mechanical gearing of turbines in mercantile and war vessels about £20,000 has been recently expended, and considerable financial risks have been undertaken in relation to the first contracts.
With these preliminary remarks I now come to the subject of our lecture.

Fig. 2. Hero's Reaction Steam Wheel.
The first turbine of which there is any record was made by Hero of Alexandria, 2,000 years ago, and it is probably obvious to most persons that some power can be obtained from a jet of steam either by the reaction of the jet itself, like a rocket or by its impact on some kind of paddle wheel. About the year 1837 several reaction steam wheels were made by Avery at Syracuse, New York, and by Wilson at Greenock, for driving circular saws and cotton gins. Fig. 3 shows the rotor of Avery's machine: steam is

Fig. 3. Rotor of Avery's Turbine.
introduced into it through a hollow shaft, and, by the reaction of the jets at the extremities, causes rotation. The rotor was 5 feet across, and the speed 880 feet per second. These wheels were inefficient, and it is not so obvious that an economical engine could be made on this principle. In the year 1888 Dr de Laval of Stockholm undertook the problem with a considerable measure of success. He caused the steam to issue from a trumpet-shaped jet, so that the energy of expansion might be utilized in giving velocity to the steam. Recent experiments have shown that in such

Fig. 4. Dr de Laval's Turbine.
jets about 80 per cent, of the whole of the available energy in the steam is converted into kinetic energy of velocity in a straight line, the velocity attained into a vacuum being about 4,000 feet per second. Dr de Laval caused the steam to impinge on a paddle wheel made of the strongest steel, which revolved at the highest speed consistent with safety, or about half the velocity of a modern rifle bullet, for the centrifugal forces are enormous. Unfortunately, materials are not strong enough for the purpose, and the permissible speed of the wheel can only reach about two-thirds of that necessary for good economy, as I shall presently explain. Dr de Laval also introduced spiral helical gearing for reducing the enormous speed of rotation of his wheel (which needed to be kept of small diameter because of skin friction losses) to the ordinary speeds of things to be driven, and I shall allude to this gear later as a mechanism likely to play a very important part generally in future turbine developments.
In 1884 or four years previously, I dealt with the turbine problem in a different way. It seemed to me that moderate surface velocities and speeds of rotation were 
Fig. 5. The First Parsons' Turbine
I was also anxious to avoid the well-known cutting action on metal of steam at high velocity.
The close analogy between the laws for the flow of steam and water under small differences of pressure have been confirmed by experiment, and the usual formula of velocity = √2gh, where h is the hydraulic head, gives the velocity of issue from a jet for steam with small heads and also for water, and I shall presently follow this part of the subject further in dealing with the design of turbines. Having decided on the compound principle it was necessary to commence with small units at first; and thus, notwithstanding the compounding, the speed of revolutions though much reduced was still rather high.
The first compound steam turbine of 10 horse power (page 7) ran at 18,000 revolutions per minute, and had slightly elastic bearings to allow it to rotate about its dynamic or principal axis. The turbine teeth or blades were like a cog wheel, set at an angle and sharpened at the front edges, and the guide blades were similar. These are shown in Fig. 6 on the next page.
Gradually the form of the blades was
Fig. 6. Straight Blading of First Turbine made, 1884. |
Figs. 7 to 11. Blades and Distance Pieces Tried in 1894. |
Figs. 16 to 17. Successive Types of Dummy Strips. | |
Figs. 12 to 15. Blades experimented with in 1900. | |
Figs. 6 to 17. Systems of Blading.

Figs. 18 and 19. Formers for making Segments of Blades.

Fig. 20 Forming Segments of Casings and Rotor Blading
I have said that steam behaves almost like an incompressible fluid in each turbine of the series, but because of its elasticity its volume gradually increases with the succession of small falls of pressure, and the succeeding turbines consequently are made larger and larger. This enlargement is secured in three ways: (1) by increasing the height of blade, (2) by increasing the diameter of the succeeding drums, and (3) by altering the angles and openings between the blades. All three methods are generally adopted (page 17) to accommodate the expanding volume of the steam which in a condensing turbine reaches one hundredfold or more before it issues from the last blades to the condenser.
Now as to the best speed of the blades, it will be easily seen that in order to obtain as much power as possible from a given quantity of steam, each row must work under appropriate conditions. This has been found by experiment to require that the velocity of the blades relatively to the guide blades shall be from one-half to three-quarters of the velocity of the steam passing through them, or more accurately equal to one-half to three-quarters of the velocity of issue from rest due to the drop of pressure in guides or moving blades, for in the usual reaction turbine the guides are identical with the moving blades.
The curve for efficiency in relation to the velocity ratio has a fairly flat top, so that the speed of the turbine may be varied considerably about that for maximum efficiency without materially affecting the result.
In compound land turbines the efficiency of the initial rows is about 60 per cent., and 
Fig. 21 Blading a Rotor at the Turbinia Works

Fig. 22 Section of High-Pressure Ahead Marine Turbine
Fig. 23. | ||
Fig. 24a. | ||
Fig. 24b. |
Fig. 25. |
Fig. 26. Compensating Winding made in 1885. |
| Fig. 23 to 25. Dynamo of 1884, driven by First Turbine | ||
Fig. 23 to 26. Early Turbine-Driven Electric-Generator
The construction of a suitable dynamo to run with the turbine involved nearly as much trouble as the turbine itself: the chief features were the adoption of very low magnetic densities in the armature core and small diameters and means to resist the great centrifugal forces as shown in the views on page 18. The dynamo was also mounted in elastic bearings. Now that the turbine has found its most suitable field in large powers to which we always looked forward and as the speed of revolution has been consequently reduced, elasticity in the bearings is less essential, and in large land plants and in marine work rigid bearings are universal. There are many forms of turbines on the market. It is only necessary, however, for us here to consider the four chief types which are:—
First, the compound reaction turbine with which we have been dealing, representing over 90 per cent, of all marine turbines in use in the world, and about half the land turbines driving dynamos.
Second, the de Laval, which is only used for small powers.
Third, the "multiple impulse, compounded" or Curtis, which has been chiefly used on land, but which has been fitted in a few ships.
Lastly, a combination of the compound reaction type with one or more "multiple impulse or Curtis elements" at the high-pressure end to replace the reaction blading.
We may dismiss the other varieties as simply modifications of the original types without possessing any originality or scientific interest.
Now let me further explain the multiple impulse type, and commence by saying that it is the only substantial innovation in turbine practice since the compound reaction and the de Laval turbines came into use. It was proposed by Pilbrow in 1842, and first brought into successful operation by Curtis in 1896, Some consideration should be given to it as involving several characteristic points of difference from what has been said about the compound reaction type. Curtis in the first place used the de Laval divergent

Fig. 27. Diagram of Curtis Blades and Nozzles.
nozzle, and he also used compounding to the limited extent of only 5 to 9 stages, as compared with 50 to 100 in the compound type. With these provisos the same principles in the abstract as regards velocity ratio now apply, and the steam issuing from the jets rebounds again and again between the fixed and moving buckets at each velocity compounded stage: the best velocity ratio in a four row multiple impulse is only one-seventh and the efficiency about 44 per cent., and therefore much lower than that of reaction blading, which as we have stated is under favourable conditions 75 to 85 per cent.
The advantages, however, to be derived from the use of some multiple impulse elements at the commencement of the turbine are that because there is very little loss in them from leakage, therefore in spite of their low intrinsic efficiency, one or more multiple impulse wheels can in certain cases usefully replace reaction blading. The explanation is that in turbines of the compound reaction type of moderate power and slow speed of revolution the blades are often very short at the commencement, and consequently there is in such cases excessive loss by leakage through the clearance space, which brings the efficiency below that of impulse blading. In most cases one multiple impulse wheel is preferred, followed by reaction blading. Such 
Fig. 28 Parson's Combined Impulse-Reaction Turbine.

Fig. 29. Parson's Combined Impulse-Reaction Turbine.
When highly superheated steam is used the temperature is much reduced by expansion in the jets and work done in the impulse wheel before it passes to the main turbine casing.
The highest efficiency yet attained by land turbines has, however, been with the pure compound reaction type of large size, where the high pressure portion is contained in a separate casing of short length and great rigidity, now made usually of steel. The working clearances can by this arrangement be reduced to a minimum and the highest efficiency attained.
The first turbine imported into Germany in 1900, of 2000 h.p., was on this principle, while the latest turbines are of 12,000 h.p., and generate current for the Metropolitan Railway in London.
In marine work the same principle has been almost universal since 1896, when the original single turbine of the "Turbinia" was 
Figs. 30 and 31. General arrangement of Turbines in Series in the "Turbinia."

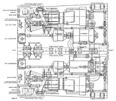
Fig. 32. Turbines in Series for Four Shaft arrangement in Battleships.

Fig. 33. Turbines arranged, three in series, for a Four Screw Battleship

Fig. 34. Section of High-Pressure Turbine, with Cruising Element.
Before passing to the consideration of other applications of the turbine I should like, with your permission, to repeat an experiment which illustrates the phenomenon of cavitation. The chief difficulty in applying the turbine to marine propulsion arose in the breaking away of the water, or the hollowing out of vacuous cavities when it was attempted to rotate the screw above certain limits. The phenomenon was first observed by Sir John Thornycroft and Mr Sydney Barnaby. They designated this phenomenon by the appropriate name "Cavitation," and it entails, by

Fig. 35. Apparatus for Experiments on Cavitation.

Fig. 36. Beginning of Cavitation; 1500 Revolutions.

Fig. 37. Advanced stage in Cavitation; 1800 Revolutions.

Fig. 38. Final stage of Cavitation; 2000 Revolutions.
In models, and in vessels of moderate speed, the forces are not sufficient to tear
| Date | Power | Steam per kw. hour | Vacuum (Bar. 30") | Superheat | Steam pressure per sq. inch |
|---|---|---|---|---|---|
| kw. | lb. | in. | Deg. F. | lb. | |
| 1885 | 4 | 200 | 0* | 0* | 60 |
| 1888 | 75 | 55 | 0* | 0* | 100 |
| 1892 | 100 | 27.00 | 7 | 50 | 100 |
| 1900 | 1250 | 18.22 | 28.4 | 125 | 130 |
| 1902 | 3000 | 14.74 | 27 | 235 | 138 |
| 1907–1910 | 5000 | 13.2 | 28.8 | 120 | 200 |
^* These were non-condensing turbines using saturated steam.
the water asunder, but if the pressure of the atmosphere is removed by an air pump, a model screw will cavitate at a comparatively moderate speed.
The improvement in efficiency resulting from the successive modifications and improvements in the proportions of turbines, and also arising from the increase in the size is shown by the particulars given in the Table opposite.
Table II on this page gives corresponding data in regard to marine turbines.
| Date | Name of Ship | Length | Displacement | H.P. | Steam consumption per S.H.P. per hr. for all purposes | Speed in knots |
|---|---|---|---|---|---|---|
| ft. | tons | lb. | ||||
| 1897 | "Turbinia" | 100 | 44½ | 2,300 | 15 | 32.75 |
| 1901 | "King Edward" | 250 | 650 | 3,500 | 16 | 20.48 |
| 1905 | H.M.S. "Amethyst" | 360 | 3,000 | 14,000 | 13.6 | 23.63 |
| 1906 | H.M.S. "Dreadnought" | 490 | 17,900 | 24,712 | 15.3 | 21.25 |
| 1907 | "Mauretania" & "Lusitania" | 785 | 40,000 | 74,000 | 14.4 | 26.0 |
Many warships are now being fitted with installations with double and treble turbines in series on the steam and exceeding the
| "Turbinia," built 1894; length, 100ft., displacement, 44½ tons; horse-power, 2300, speed, 32¾ knots. | |
| H. M. Torpedo-Boat Destroyer "Velox," built 1902, length, 210 ft., displacement, 420 tons; shaft horse-power, 8000, speed, 27.12 knots. | ![]() |
| H. M. Torpedo-Boat Destroyer "Eden," built 1903, length, 220 ft., displacement, 540 tons; shaft horse-power, 7000, speed, 26.22 knots. | ![]() |
| H. M. Torpedo-Boat Destroyer "Swift," built 1908, length, 345 ft., displacement, 2170 tons; shaft horse-power, 35,000, speed, 35.3 knots. | ![]() |
| H. M. 3rd Class Cruiser "Amethyst," built 1905, length, 360 ft., displacement, 3000 tons; shaft horse-power (estimated), 14,200, speed, 23.63 knots. | ![]() |
![]() H. M. Battleship "Dreadnought," built 1906, length, 490 ft., displacement, 17,900 tons; shaft horse-power, 24,712, speed, 21.25 knots. | |
![]() H. M. Armoured Cruiser "Invincible," built 1908, length, 530 ft., displacement, 17,250 tons; shaft horse-power, 42,000, speed, 26 knots.
Fig. 39. Diagram showing growth in size between 1894 and 1908 of Turbine-propelled Warships. | |
| "Turbinia," built 1894; length, 100ft., displacement, 44½ tons; horse-power, 2300, speed, 32¾ knots. | |
| "King Edward," built 1901, length, 250 ft., displacement, 650 tons; shaft horse-power (estimated), 3500, speed, 20.48 knots. | ![]() |
| "Queen Alexandra," built 1902, length, 270 ft., displacement, 750 tons; shaft horse-power (estimated), 4000, speed, 21.625 knots. | ![]() |
| "The Queen," built 1903, length, 310 ft., speed, 21.76 knots. | ![]() |
![]() | |
![]() "Carmania," built 1905; length, 675 ft.; displacement, 30,000 tons; shaft horse-power, 21,000; speed, 20½ knots. | |
![]() "Mauretania" and "Lusitania," built 1907; length, 785 ft.; displacement; 40,000 tons; shaft horse-power, 74,000; speed, 26 knots.
Fig. 40. Diagram showing growth in the size of Turbine-propelled Merchant Ships. | |
The marine turbine, with the modifications we have so far described, is only suitable for vessels of over 16 knots speed, and to extend its use to vessels of a less speed than this, which comprise two-thirds of the tonnage of the world, has been our constant aim. The first plan for the attainment of this end is somewhat in the nature of a compromise, and is called the combination system, because the reciprocating engine is used to take the first part of the expansion and the turbine the last. From what we have said it will be apparent that this coalition of the reciprocating engine and turbine is a good one, because each works under favourable conditions. The reciprocating engine expands

Fig. 41. First set of Combination Machinery—in H.M.S. "Velox."

Fig. 42. The First Turbine Commercial Steamer—The "King Edward."
About 15 years ago this plan was worked out and the British Admiralty destroyer "Velox" was so fitted in 1902 (page 43), but no further practical steps were taken towards its application until about three years ago.
Messrs Denny of Dumbarton, who in 1901 built the first mercantile turbine vessel, the "King Edward," in 1908 built the first combination vessel, the "Otaki" of 9,900 tons and 13 knots speed. She has ordinary twin screws driven by triple expansion engines which exhaust into a turbine driving a central screw as illustrated on the next page. The initial pressure at the turbine is 9 lbs. absolute, and it develops one-third of the whole power. This combination vessel was 
Fig. 43 to 45. The Combination Machinery in the "Otaki."
The combination system has also been adopted in the White Star liners "Olympic" and "Titanic" of 60,000 tons displacement, as well as in some other vessels at home and abroad.
There is another promising solution of the problem for applying the turbine to slower vessels, which will extend its field still further over that of the reciprocating-engine. I mentioned before that de Laval had in the 'eighties introduced helical tooth gear for reducing the speed of his little turbines. For 23 years it has worked admirably on a small scale. Recent experiments, however, have led to the assurance of equal success on a large scale for the transmission of large powers.
Preliminary experiments were made some years ago on helical reduction gear, which showed a mechanical efficiency of over 98%, and a 22 feet launch was constructed in 1897: the working speed of the turbine was 20,000 revolutions per minute, which was geared in one reduction of 14 to 1 to the twin screws. The speed attained was 9 miles per hour, and this little boat was many years in use as a yacht's gig. She was the first geared turbine vessel. The next step was to test geared turbines in a typical cargo boat, and the "Vespasian" was purchased in 1908. She is of 4,350 tons displacement, and was propelled by a good triple expansion engine of 900 horse-power. After thoroughly overhauling and testing her existing machinery for coal and water consumption, to make sure that it was in thorough good order, the engine was taken out and replaced by geared turbines, the propeller, shafting, and boilers remaining the same. On again testing for economy with the new machinery a gain of 15 per cent, was shown over the reciprocating engine, and a subsequent alteration

Figs. 46 and 47. The Geared Turbines in the "Vespasian."
to the propeller has increased this gain to 22 per cent., a very remarkable saving. The new machinery, which is much lighter than the old, consists of a high pressure and a low pressure turbine, each driving a pinion at 1,400 revolutions, gearing into a spur wheel on the screw shaft making 70 revolutions per minute (page 52). The gearing is entirely enclosed in a casing, and is continually sprayed with oil by a pump.
It is interesting to compare the working of the new and the old machinery. The appended diagram (Fig. 48) shows the comparative water consumption with reciprocating and turbine engines. Everyone who has experienced a rough sea in a screw vessel knows the disagreeable sensation of the racing of the engines whenever the screw comes out of the water. In the turbine vessel nothing of the kind occurs, and the reason is very simple. It is because of the great angular momentum of turbines, which is about 50 times that of ordinary engines, consequently they gather speed so slowly that before they have appreciably accelerated the screw is down again in the water. Ordinary engines often accelerate up to three times their ordinary speed in a heavy sea, and what shakes the ship and breaks

the screw shafts is the shock on the plunging of the madly whirling propeller into the sea.
The "Vespasian" has now covered 20,000 
Fig. 49. View of the Gearing in "Vespasian."
The pinion on the table was removed from the vessel a month ago for the purpose of showing it at this lecture. As you can see it shows no sign of wear. The gearing is illustrated on page 52.
Gearing promises to play a very important part in war vessels for increasing the economy at reduced speeds. I explained the difficulty in obtaining good economy under such conditions, and by means of geared high speed turbines the efficiency will be greatly increased. The Turbinia Company are now constructing two 30-knot destroyers of 15,000 horse-power with this arrangement (page 54). The high pressure portion and cruising elements are geared in the ratios of 3 to 1 and 5 to 1 respectively to the main low pressure direct coupled turbine, and their use will increase the effective radius of action at cruising speed by nearly 50 per cent, over that of a similar destroyer without gearing.

Fig. 50. Geared Turbines in Twin Screw Torpedo Boat Destroyer.

ARRANGEMENT OF MACHINERY
(WITH GEARED CRUISING TURBINE) FOR 60,000 SHAFT HP CRUISER
Fig. 51.
Half a century ago nearly all screw vessels had mechanical gearing, one element being composed of wooden teeth, because the screw revolved at too high a speed for the engines. Subsequently it was found practicable to increase the speed of the engines up to that of the screw, and gearing was consequently abandoned. Now very slow speed turbines are found to be incompatible with efficiency, and probably will always be so; accurately cut steel gearing comes to the rescue, and I think will be a permanent institution as long as steam is used to propel our ships.
When we pass through the colliery or iron districts we often see clouds of steam blowing off to waste, but there is much less than was formerly the case, because low pressure turbines worked by the exhaust steam from other engines are coming into extended use for utilizing what was formerly a waste product. They are generally employed for the generation of electricity, or for working blast furnace blowers and centrifugal pumps and gas forcers, but recently an exhaust turbine of 750 horse-power has been applied to driving an iron plate mill in Scotland. It is especially interesting because it is the first turbine to be geared to a rolling mill. The turbine revolves at 2000 revolutions per minute, and by a double reduction of helical gears drives the mill at 70 revolutions. On the same shaft as the rolls is a flywheel of 100 tons weight which helps to equalize the speed. During the short time of each rolling the turbine and flywheel collectively exert 4000 horse-power, the maximum deceleration at the end of each roll being only 7 per cent.
So satisfactory has gearing proved up to the present that it seems probable that by its use turbines will be more widely adopted in the future for many purposes.
In conclusion, I would venture to predict that the use of the land and marine turbine will steadily increase, and that the improvements that are being made to still further increase its economy will for a long time enable the turbine to maintain its present leading position as a prime mover.
This work is in the public domain in the United States because it was published before January 1, 1927.
The author died in 1931, so this work is also in the public domain in countries and areas where the copyright term is the author's life plus 80 years or less. This work may also be in the public domain in countries and areas with longer native copyright terms that apply the rule of the shorter term to foreign works.











