< Page:Popular Science Monthly Volume 40.djvu

This page has been proofread, but needs to be validated.
634
THE POPULAR SCIENCE MONTHLY.
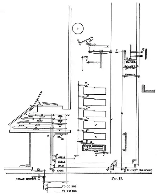
sympathetic to every demand of the artist. Mr. A. J. Hipkins gives the following account of the introduction of pneumatic action, the most valuable of modern developments, in the organ: "The late Mr. Joseph Booth, of Wakefield, was the first organ-builder to whom the idea seems to have occurred of establishing

pneumatic agency, and of thus ingeniously turning the wind-power, one of the organist's antagonists, into his assistant." (Mr. Hipkins means the pressure of wind which impedes touch through the pallets, not the wind-power through which sound is
This article is issued from Wikisource. The text is licensed under Creative Commons - Attribution - Sharealike. Additional terms may apply for the media files.